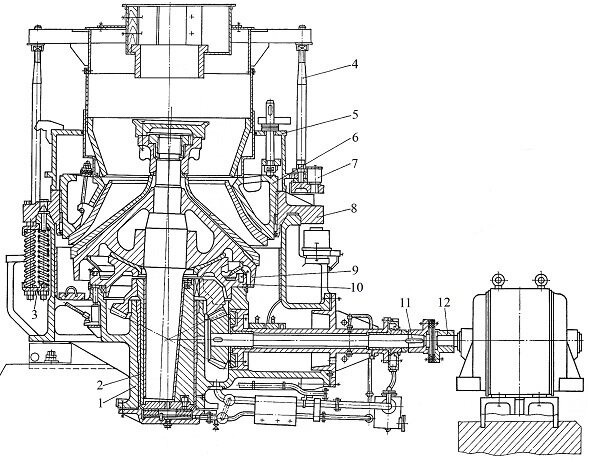
Устройство загрузочное 1275.12.400 СБ входит в сборку дробилки конусной КМД-2200 1275.00-17 СБ, которая состоит из:
|
Поз.№ |
Наименование |
Обозначение/ Исполнение |
Кол-во на сборочную единицу |
|
4 |
Устройство загрузочное |
1275.12.400 СБ |
1 |
|
6 |
Кольцо регулирующее |
1275.07.400-4СБ |
1 |
|
9 |
Конус дробящий |
1275.05.400СБ |
1 |
|
1 |
Часть нижняя |
1275.01.200СБ |
1 |
|
2 |
Эксцентрик |
1275.03.300-2СБ 1275.03.300СБ |
1 |
|
3 |
Пакет пружин |
1275.10.300-1СБ |
16 |
|
5 |
Кожух |
1275.08.200-2СБ |
1 |
|
7 |
Механизм поворота |
1275.09.700СБ |
1 |
|
8 |
Кольцо опорное |
1275.06.300-3СБ |
1 |
|
10 |
Чаша опорная |
1275.04.200-2СБ |
1 |
|
11 |
Вал приводной |
1275.02.200-1СБ 1275.02.200-4СБ |
1 |
|
12 |
Муфта упругая |
1275.13.300СБ |
|
Устройство загрузочное 1275.12.400 СБ дробилки конусной КМД-2200 1270.00-9 СБ, которая состоит из:
|
Поз.№ |
Наименование |
Обозначение/ Исполнение |
Кол-во на сборочную единицу |
|
4 |
Устройство загрузочное |
1275.12.400 СБ |
1 |
|
6 |
Кольцо регулирующее |
1270.07.300-1СБ |
1 |
|
9 |
Конус дробящий |
1270.05.200СБ |
1 |
|
1 |
Часть нижняя |
1275.01.200СБ |
1 |
|
2 |
Эксцентрик |
1275.03.300-2СБ 1275.03.300СБ |
1 |
|
3 |
Пакет пружин |
1275.10.300-1СБ |
16 |
|
5 |
Кожух |
1275.08.200-2СБ |
1 |
|
7 |
Механизм поворота |
1275.09.700СБ |
1 |
|
8 |
Кольцо опорное |
1275.06.300-3СБ |
1 |
|
10 |
Чаша опорная |
1275.04.200-2СБ |
1 |
|
11 |
Вал приводной |
1275.02.200-1СБ 1275.02.200-4СБ |
1 |
|
12 |
Муфта упругая |
1275.13.300СБ |
|

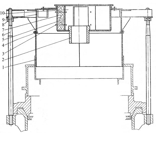
Устройство загрузочное КМД-2200Т(Гр) 1275.12.400 СБ состоит из:
|
Поз.№ |
Наименование |
Обозначение/ Исполнение |
Кол-во на сборочную единицу |
|
7 |
Коробка с фланцем |
1275.12.415 СБ |
1 |
|
9 |
Кожух |
1275.12.401 СБ |
1 |
|
10 |
Экран |
1275.12.326 СБ |
1 |
|
1 |
Воротник |
1275.12.419-1 |
3 |
|
2 |
Патрубок |
1275.12.418 |
1 |
|
3 |
Болт |
1275.12.341 |
2 |
|
4 |
Планка |
1275.12.217 |
12 |
|
5 |
Брус |
1275.12.339 |
1 |
|
6 |
Стойка |
1275.12.215-1 |
4 |
|
8 |
Гайка |
1275.12.417-1 |
4 |

Чтобы приобрести понравившийся товар, необходимо его заказать. Есть несколько сценариев того, как это можно сделать.
- Выбрать понравившийся товар и нажать кнопку «Заказать». При оформлении заказа заполнить форму. Вписать информацию в поля: ФИО, телефон и e-mail. Затем вам перезвонит менеджер, чтобы подтвердить ваше согласие на совершение покупки.
- Выбрать понравившийся товар и нажать кнопку «В корзину». Затем перейти в корзину и нажать «Оформить заказ». Далее заполнить форму с контактными данными и отправить заявку. С вами свяжется менеджер для дальнейшего обсуждения.
- Перейти в карточку товара и нажать «Купить в один клик». После нажатия нужно заполнить форму и отправить заявку. С вами свяжется менеджер для дальнейшего обсуждения.
Оплата по реквизитам на расчетный счет
Самовывоз в г. Орск
Орск, Оренбургская область, г.Орск, ул. Металлистов, 11
Цена
Бесплатно
График работы
Пн-Пт 9:00 - 17:00 ; Сб, Вс выходные

